• Skip to main content
Agave-Custom-Homes-Logo
  • About
    • Where We Build
    • Publications
    • Testimonials
  • Available
    • Homes For Sale
    • Available Lots
  • The Process
  • Portfolio
  • Comanche Trace
  • House Beautiful
  • Blog
  • Contact Us

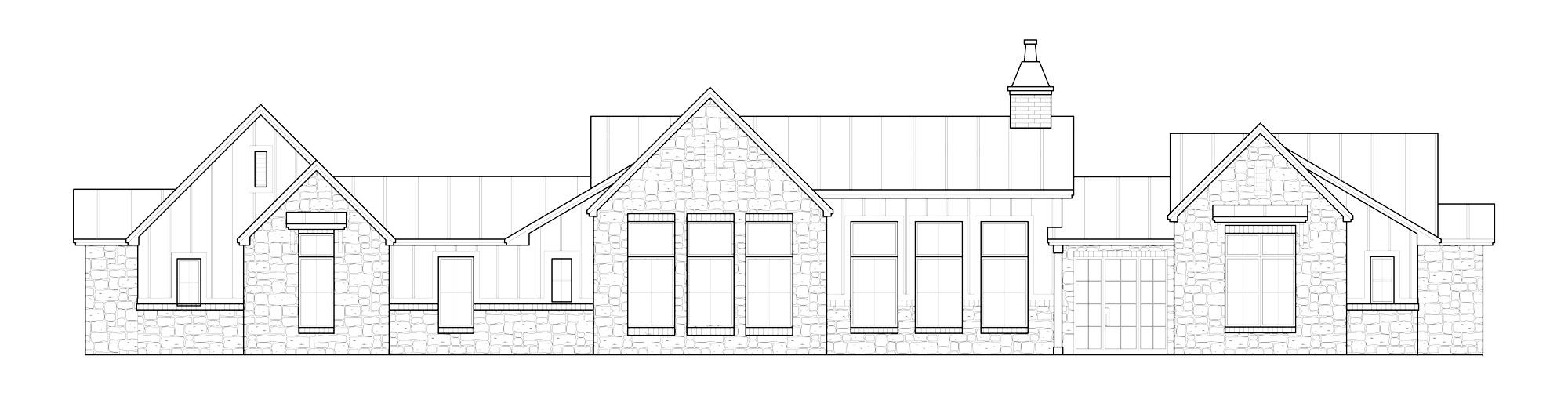
Camp Verde

CAMP-VERDE-Front-Elevation-by-Agave-Custom-Homes

Proposed Spec to Be Built

307 Seep Springs Drive

3,044 Sq Ft A/C
4 Bedroom | 3.5 Bathrooms | 3 Car Garage

CAMP-VERDE-Floor-Plan-Agave-Custom-Homes

Additional Proposed Specs

Have the land? We've got the plans

VIEW OUR PORTFOLIO

VISIT AGAVE REALTY

Agave-Realty-Logo-White

JOIN OUR MAILING LIST

!
!
Subscribe
Something went wrong. Please check your entries and try again.

CONNECT WITH US

512-844-0138

© 2026 Agave Custom Homes | All Rights Reserved | Site Design by KateOGroup, LLC